M7876 高棚町貸事務所 落ち着いた環境の丁度いい貸事務所。

〒4460053 安城市高棚町東山

214,500円(税込み)

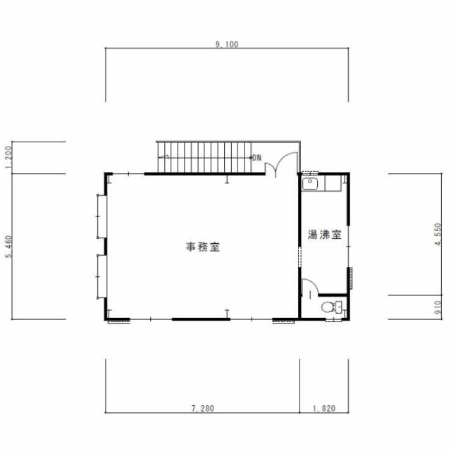
安城市高棚町の数少ない事務所。2階部分のワンフロア貸しです。

  • 1階
  • 2階以上
  • 駐車場(近隣含む)
  • エアコン
  • 男女別トイレ
  • エレベーター
  • 光ファイバー
  • 即引き渡し可
  • 24時間利用可
  • OAフロア
賃料 214,500円 管理費等 5,500円
敷金 300,000円 礼金 1ヶ月分
坪数 15.05坪 専有面積 49.68㎡
建物種別 事務所 築年数 1991年9月(築34年)
部屋向き 所在地 〒4460053 安城市高棚町東山
最寄駅 東海道本線 三河安城駅 徒歩/バス 徒歩64分

空室確認や見学したいなどお気軽にお問い合わせください!

0566-91-7775 受付時間:10:00〜18:00 定休日:水曜日
※1月4日から3月末までは毎日営業

物件情報

階/階建 2階/2階 築年/築年月 34年 / 1991年9月
建物種別 事務所 構造 鉄骨
入居時期 駐車場 有 
取引態様 媒介 物件登録日 2022年03月27日
設備 給湯
その他 2階以上 / 最上階 / 即引渡し可 / 駐車場(近隣含む)

周辺地図

空室確認や見学したいなどお気軽にお問い合わせください!

0566-91-7775 受付時間:10:00〜18:00 定休日:水曜日
※1月4日から3月末までは毎日営業