M10340 知立市来迎寺町貸事務所倉庫

〒472-0002 愛知県知立市来迎寺町

748,000円(税込み)

名鉄三河線:三河八橋駅徒歩15分

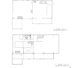
広々596.33㎡の倉庫付き事務所

  • 1階
  • 2階以上
  • 駐車場(近隣含む)
  • エアコン
  • 男女別トイレ
  • エレベーター
  • 光ファイバー
  • 即引き渡し可
  • 24時間利用可
  • OAフロア
賃料 748,000円 管理費等
敷金 3ヶ月分 礼金 1ヶ月分
坪数 180.70坪 専有面積 596.33㎡
建物種別 事務所 築年数 1998年4月(築28年)
部屋向き 所在地 〒472-0002 愛知県知立市来迎寺町
最寄駅 名鉄三河線 三河八橋駅 徒歩/バス 徒歩15分

空室確認や見学したいなどお気軽にお問い合わせください!

0566-91-7775 受付時間:10:00〜18:00 定休日:水曜日
※1月4日から3月末までは毎日営業

物件情報

階/階建 1-2/2階 築年/築年月 28年 / 1998年4月
建物種別 事務所 構造 鉄骨
入居時期 2026年4月下旬 駐車場 有 127,000円
取引態様 媒介 物件登録日 2025年11月30日
設備
その他 2階以上 / 最上階 / 1階の物件 / 駐車場(近隣含む)

周辺地図

空室確認や見学したいなどお気軽にお問い合わせください!

0566-91-7775 受付時間:10:00〜18:00 定休日:水曜日
※1月4日から3月末までは毎日営業