M10339 百石町2丁目貸事務所1

〒446-0044 安城市百石町2丁目

440,000円(税込み)

JR東海道本線:安城駅徒歩26分

ゆったり164㎡の事務所。駐車場5台分無料

戸建気分です。

  • 1階
  • 2階以上
  • 駐車場(近隣含む)
  • エアコン
  • 男女別トイレ
  • エレベーター
  • 光ファイバー
  • 即引き渡し可
  • 24時間利用可
  • OAフロア
賃料 440,000円 管理費等
敷金 3ヶ月分 礼金 1ヶ月分
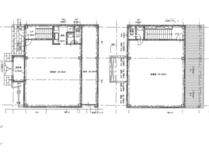
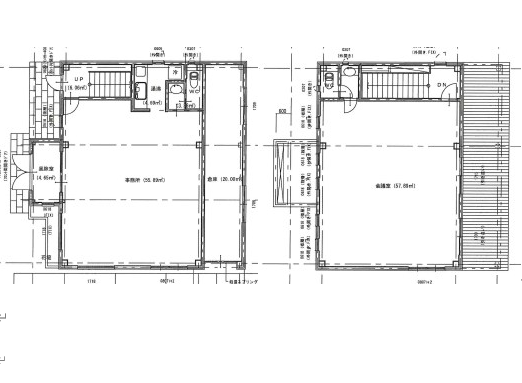
坪数 49.94坪 専有面積 164.83㎡
建物種別 事務所 築年数 2009年4月(築17年)
部屋向き 西 所在地 〒446-0044 安城市百石町2丁目
最寄駅 東海道本線 安城駅 徒歩/バス 徒歩26分

空室確認や見学したいなどお気軽にお問い合わせください!

0566-91-7775 受付時間:10:00〜18:00 定休日:水曜日
※1月4日から3月末までは毎日営業

物件情報

階/階建 1-2/2階 築年/築年月 17年 / 2009年4月
建物種別 事務所 構造 鉄骨
入居時期 2026年1月 駐車場 有 
取引態様 媒介 物件登録日 2025年11月30日
設備
その他 1階の物件 / 駐車場(近隣含む)

周辺地図

空室確認や見学したいなどお気軽にお問い合わせください!

0566-91-7775 受付時間:10:00〜18:00 定休日:水曜日
※1月4日から3月末までは毎日営業